Srubový dům Jirka 4 + kk

Dispozičně je podkrovní srub Jirka navržen tak, aby splňoval požadavky pro bydlení až 6. členné rodiny.

Srub je svými rozměry vhodný na střední stavební parcely od 1000 m2.

Srubový dům je svým tradičním vzhledem vhodný do téměř jakékoliv krajiny i se zástavbou.

Srub je možné vybavit i prosklenými štíty, které od podzimu do jara pomáhají vytápět interiér. V letních měsících, kdy je slunce na obloze vysoko, chrání slunečnímu svitu větší štítové přesahy střechy.

Základní parametry Ceny realizací
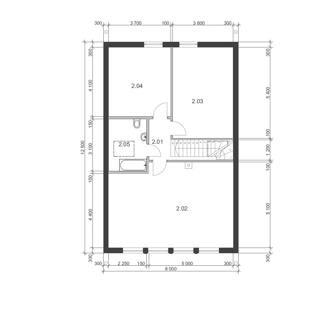
Půdorysné rozměry:                      12,5 x 8 m Cena hrubé stavby bez DPH: 2 299 000,- Kč
Zastavená plocha                         100,0 m2 Odhad ceny na klíč - cena bez DPH od: 6 159 000,- Kč
Celková užitková plocha:                         170,0 m2    
Obývací pokoj + KK                         46,38 m2 Co je obsahem ceny hrubé stavby  
Ložnice + pokoj + pokoj   14,79+35,42+35,40 m Cena stavby na klíč obsahuje  

Tuto stavbu je možné postavit také jako roubenku z hraněného masivu.

I tuto stavbu jsme připraveni dispozičně upravit ( např. v podkroví můžou být až 4. pokoje) . Společně s investorem navrhujeme taková řešení, aby vyhověla jeho požadavkům s ohledem na terén, světové strany, přístupové komunikace, finanční možnosti a pod.

Srub-JIRKA-Studie.pdf797.73 KB

Máte zájem o bližší informace o stavbě? Kontaktujte nás!

  • Položky označené hvězdičkou (*) jsou povinné.

Tento web využívá cookies

Tento web používá k poskytování služeb, personalizaci reklam a analýze návštěvnosti soubory cookie. Používáním tohoto webu s tím souhlasíte. Zobrazit podrobnosti