Bungalov Petr 4 + kk

Dispozičně je srub Petr navržen tak, aby splňoval požadavek pro bydlení až 4. členné rodiny. Bungalov je svými rozměry vhodný spíše na větší stavební parcely od 1.100 m2. Kryté stání pro auto a krytá terasa s posezením  výtečně podtrhuje vysokou účelnost tohoto typu stavby.

Tento typ stavby je našimi zákazníky nejčastěji prováděnou přízemní stavbou. Výhodný poměr velikosti stavby a ceny.

Srubový bungalov Petr může využít podstřešní část pro rozvod teplovzdušného vytápění z krbu, který je pohodlně rozváděn do všech místností v objektu.

Základní parametry Ceny realizací
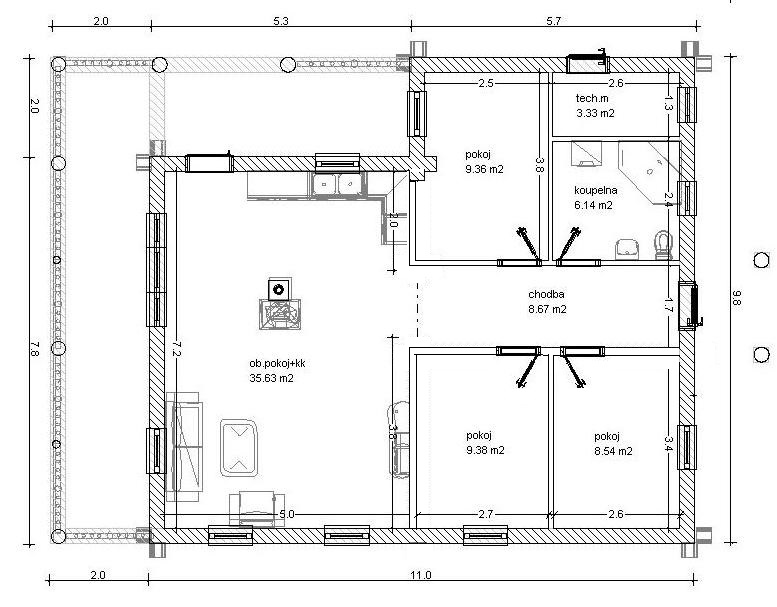
Půdorysné rozměry:                   9,8 x 11 m Cena hrubé stavby bez DPH: 1 929 000,- Kč
Zastavená plocha                        97,0 m2 Odhad ceny na klíč - cena bez DPH od: 5 258 000,- Kč
Celková užitková plocha:                        80,0 m2    
Obývací pokoj + KK                        35,6 m2 Co je obsahem ceny hrubé stavby  
Ložnice + pokoj + pokoj   9,36 + 8,54 + 8,54m Cena stavby na klíč obsahuje  

Máte zájem o bližší informace o stavbě? Kontaktujte nás!

  • Položky označené hvězdičkou (*) jsou povinné.

Tento web využívá cookies

Tento web používá k poskytování služeb, personalizaci reklam a analýze návštěvnosti soubory cookie. Používáním tohoto webu s tím souhlasíte. Zobrazit podrobnosti